Hồ sơ báo cáo ĐTM nhà máy điện rác

Hồ sơ báo cáo (ĐTM) đánh giá tác động môi trường dự án nhà máy điện rác. Xây dựng nhà máy xử lý CTR bằng công nghệ đốt phát điện tại Khu liên hợp xử lý CTR.

Ngày đăng: 06-11-2025

427 lượt xem

MỤC LỤC.......................................................................................................... i

DANH MỤC CÁC TỪ VÀ KÝ HIỆU VIẾT TẮT............................................... v

DANH MỤC CÁC BẢNG................................................................................ vi

DANH MỤC CÁC HÌNH VẼ............................................................................. x

MỞ ĐẦU......................................................................................................... 11

1.   Xuất xứ dự án............................................................................................... 11

1.1.   Thông tin chung về dự án............................................................................ 11

1.2.   Cơ quan, tổ chức có thẩm quyền phê duyệt chủ trương đầu tư......................... 13

1.3.    Sự phù hợp của dự án đầu tư với Quy hoạch bảo vệ môi trường quốc gia, quy hoạch bảo tồn đa dạng sinh học, quy hoạch vùng, quy hoạch tỉnh, quy định của pháp luật về bảo vệ môi trường; đa dạng sinh học; mối quan hệ của dự án với các dự án khác, các quy hoạch và quy định khác của pháp luật có liên quan...... 13

2.  Căn cứ pháp lý và kỹ thuật của việc thực hiện đánh giá tác động môi trường (ĐTM)16

2.1.     Các văn bản pháp lý, quy chuẩn, tiêu chuẩn và hướng dẫn kỹ thuật có liên quan làm căn cứ cho việc thực hiện ĐTM... 16

2.2.    Các văn bản pháp lý, quyết định, văn bản của các cấp có thẩm quyền liên quan đến Dự án..... 22

3.   Tổ chức thực hiện đánh giá tác động môi trường............................................ 23

3.1.   Tổ chức thực hiện....................................................................................... 23

3.2.   Trình tự thực hiện....................................................................................... 24

4.  Phương pháp đánh giá tác động môi trường..................................................... 24

5.   Tóm tắt nội dung chính của báo cáo ĐTM..................................................... 26

5.1.   Thông tin về Dự án..................................................................................... 26

5.2.    Hạng mục công trình và hoạt động của Dự án đầu tư có khả năng tác động xấu đến môi trường.............. 28

5.3.   Dự báo các tác động môi trường chính, chất thải phát sinh theo các giai đoạn của Dự án đầu tư.............. 29

5.4.   Các công trình và biện pháp bảo vệ môi trường của Dự án.............................. 32

5.5.   Chương trình quản lý và giám sát môi trường của Chủ Dự án.......................... 37

CHƯƠNG 1. THÔNG TIN VỀ DỰ ÁN............................................................ 41

1.1.   THÔNG TIN VỀ DỰ ÁN.......................................................................... 41

1.1.1.   Tên dự án................................................................................................ 41

1.1.2.   Thông tin Chủ dự án................................................................................. 41

1.1.3.   Vị trí địa lý của địa điểm thực hiện dự án.................................................... 41

1.1.4.   Hiện trạng quản lý, sử dụng đất của dự án................................................... 42

1.1.5.   Khoảng cách từ dự án tới khu dân cư và khu vực có yếu tố nhạy cảm về môi trường........... 44

1.1.6.   Mục tiêu, loại hình, quy mô, công suất và công nghệ sản xuất Dự án............. 45

1.1.6.1    Mục tiêu dự án..................................................................................... 45

1.1.6.2.      Loại hình dự án.................................................................................. 45

1.1.6.3.    Quy mô, công suất của dự án.............................................................. 45

1.1.6.4.    Công nghệ sản xuất của dự án............................................................ 45

1.1.7.   Phạm vi dự án.......................................................................................... 46

1.1.7.1.    Các hạng mục công trình và hoạt động của dự án đầu tư..................... 46

1.1.7.2.     Các hạng mục công trình và hoạt động của dự án đầu tư không thuộc phạm vi đánh giá tác động môi trường......... 47

1.1.8.   Các yếu tố nhạy cảm về môi trường........................................................... 47

1.2.   CÁC HẠNG MỤC CÔNG TRÌNH VÀ HOẠT ĐỘNG CỦA DỰ ÁN.......... 47

1.2.1.   Các hạng mục công trình chính của Dự án.................................................. 47

1.2.1.2.   Hệ thống tiếp nhận rác........................................................................... 47

1.2.1.3.   Hệ thống lò đốt và lò hơi........................................................................ 50

1.2.1.4.   Thiết bị tuabin hơi................................................................................. 61

1.2.1.5.   Trạm biến áp 22kV................................................................................ 68

1.2.2.   Các hạng mục công trình phụ trợ của dự án................................................ 69

1.2.2.1.   Nhà bảo vệ............................................................................................ 69

1.2.2.2.   Đường giao thông.................................................................................. 69

1.2.2.3.   Bố trí cảnh quan cây xanh...................................................................... 69

1.2.2.4.   Hệ thống cấp nước................................................................................. 70

1.2.2.5.   Hệ thống PCCC.................................................................................... 71

1.2.3.   Các hạng mục công trình xử lý chất thải và bảo vệ môi trường..................... 72

1.2.3.1.     Hệ thống xử lý khí thải.......................................................................... 72

1.2.3.2.   Công trình thu gom, xử lý nước thải........................................................ 73

1.2.3.3.   Công trình lưu giữ, xử lý CTR, CTNH.................................................... 74

1.2.4.   Các hoạt động của dự án........................................................................... 75

1.2.5.   Các công trình đảm bảo dòng chảy tối thiểu, bảo tồn đa dạng sinh học; công trình giảm thiểu tác động do sạt lở, sụt lún, xói lở, bồi lắng, nhiễm mặn, nhiễm phèn76 Không có         76

1.2.6.   Các công trình giảm thiểu tiếng ồn, độ rung; các công trình bảo vệ môi trường khác                                                                                                                         76

1.2.6. Đánh giá việc lựa chọn công nghệ, hạng mục công trình và hoạt động của dự án đầu tư có khả năng tác động xấu đến môi trường................................................. 76

1.3.     NGUYÊN, NHIÊN, VẬT LIỆU, HÓA CHẤT SỬ DỤNG CỦA DỰ ÁN; NGUỒN CUNG CẤP ĐIỆN, NƯỚC VÀ CÁC SẢN PHẨM CỦA DỰ ÁN    83

1.3.1.   Nhu cầu nguyên, nhiên, vật liệu trong giai đoạn xây dựng............................ 83

1.3.1.1.    Nhu cầu nguyên, nhiên, vật liệu, hóa chất........................................... 83

1.3.1.2.    Nhu cầu máy móc, thiết bị thi công..................................................... 84

1.3    2. Nguyên, nhiên, vật liệu, hóa chất sử dụng của dự án trong giai đoạn vận hành 88

1.3.2.1.    Nguyên, nhiên, vật liệu, hóa chất sử dụng của dự án........................... 88

1.3.3.   Sản phẩm của dự án................................................................................. 90

1.4.   CÔNG NGHỆ SẢN XUẤT, VẬN HÀNH.................................................. 91

1.4.1.   Công nghệ đốt CTR phát điện................................................................... 91

1.4.2.    Công nghệ tái chế dầu DO....................................................................... 93

1.4.3.    Công nghệ tái chế nhựa PE...................................................................... 95

1.4.4.    Công nghệ xử lý chất thải y tế.................................................................. 96

1.5.   BIỆN PHÁP TỔ CHỨC THI CÔNG.......................................................... 98

1.5.1.   Bố trí mặt bằng........................................................................................ 98

1.5.2.   Bố trí lán trại nghỉ trưa cho công nhân trên công trường............................... 99

1.5.3.   Công tác thi công móng............................................................................ 99

1.5.4.   Công tác bê tông.................................................................................... 100

1.5.5.     Công tác kết cấu thép............................................................................. 102

1.5.6.   Công tác lắp đặt thiết bị công nghệ........................................................... 102

1.6.   TIẾN ĐỘ, TỔNG MỨC ĐẦU TƯ, TỔ CHỨC QUẢN LÝ VÀ THỰC HIỆN DỰ ÁN 103

1.6.1.   Tiến độ thực hiện dự án........................................................................... 103

1.6.2.   Tổng mức đầu tư.................................................................................... 103

1.6.3.   Tổ chức quản lý và thực hiện dự án.......................................................... 104

CHƯƠNG 2................................................................................................... 106

ĐIỀU KIỆN TỰ NHIÊN, KINH TẾ - XÃ HỘI VÀ HIỆN TRẠNG.................. 106

MÔI TRƯỜNG KHU VỰC THỰC HIỆN DỰ ÁN.......................................... 106

2.1.   ĐIỀU KIỆN TỰ NHIÊN, KINH TẾ - XÃ HỘI.......................................... 106

2.2.   HIỆN TRẠNG CHẤT LƯỢNG MÔI TRƯỜNG VÀ ĐA DẠNG SINH HỌC KHU VỰC THỰC HIỆN DỰ ÁN.......... 110

2.2.1.   Đánh giá hiện trạng các thành phần môi trường......................................... 110

2.2.2.   Hiện trạng đa dạng sinh học.................................................................... 114

2.3.    NHẬN DẠNG CÁC ĐỐI TƯỢNG BỊ TÁC ĐỘNG, YẾU TỐ NHẠY CẢM VỀ MÔI TRƯỜNG KHU VỰC THỰC HIỆN DỰ ÁN................. 114

2.4.   SỰ PHÙ HỢP CỦA ĐỊA ĐIỂM LỰA CHỌN THỰC HIỆN DỰ ÁN    115

CHƯƠNG 3. ĐÁNH GIÁ, DỰ BÁO TÁC ĐỘNG MÔI TRƯỜNG CỦA DỰ ÁN VÀ ĐỀ XUẤT CÁC BIỆN PHÁP, CÔNG TRÌNH BẢO VỆ MÔI TRƯỜNG, ỨNG PHÓ SỰ CỐ MÔI TRƯỜNG....................... 116

3.1.   ĐÁNH GIÁ TÁC ĐỘNG VÀ ĐỀ XUẤT CÁC BIỆN PHÁP GIẢM THIỂU, CÔNG TRÌNH BẢO VỆ MÔI TRƯỜNG TRONG GIAI ĐOẠN THI CÔNG, XÂY DỰNG       116

3.1.1.   Đánh giá, dự báo các tác động............................................................... 116

3.1.1.1.   Các tác động môi trường liên quan đến chất thải..................................... 116

3.1.1.2.   Các tác động do tiếng ồn, độ rung.......................................................... 132

3.1.1.6. Các tác động rủi ro, sự cố môi trường.................................................... 138

3.1.2.    Các công trình, biện pháp thu gom, lưu giữ, xử lý chất thải và biện pháp giảm thiểu tác động tiêu cực khác đến môi trường.......... 140

3.1.2.1.   Biện pháp giảm thiểu các tác động liên quan đến chất thải....................... 140

3.1.2.2.   Giảm thiểu các tác động không liên quan đến chất thải............................ 147

3.1.2.3.   Biện pháp giảm thiểu tác động rủi ro, sự cố môi trường........................... 150

3.2.   ĐÁNH GIÁ TÁC ĐỘNG VÀ ĐỀ XUẤT CÁC BIỆN PHÁP, CÔNG TRÌNH BẢO VỆ MÔI TRƯỜNG TRONG GIAI ĐOẠN VẬN HÀNH.......... 153

3.2.1.   Đánh giá, dự báo các tác động............................................................... 153

3.2.1.1.   Đánh giá, dự báo các tác động liên quan đến chất thải............................. 153

3.2.1.2.   Đánh giá, dự báo các tác động không liên quan đến chất thải................... 175

3.2.1.3.   Tác động rủi ro, sự cố môi trường......................................................... 179

3.2.2.    Các công trình, biện pháp thu gom, lưu giữ, xử lý chất thải và biện pháp giảm thiểu tác động tiêu cực khác đến môi trường.... 184

3.2.2.1.   Biện pháp phòng ngừa, giảm thiểu các tác động liên quan đến chất thải.... 184

3.2.2    2. Biện pháp phòng ngừa, giảm thiểu các tác động không liên quan đến chất thải214

3.3.    TỔ CHỨC THỰC HIỆN CÁC CÔNG TRÌNH, BIỆN PHÁP BẢO VỆ MÔI TRƯỜNG................ 221

3.3.1.   Danh mục công trình, biện pháp bảo vệ môi trường và kế hoạch xây lắp các công trình bảo vệ môi trường của dự án......221

3.3.2.  Tổ chức, bộ máy quản lý, vận hành các công trình bảo vệ môi trường......... 222

3.4.   NHẬN XÉT VỀ MỨC ĐỘ CHI TIẾT, ĐỘ TIN CẬY CỦA CÁC KẾT QUẢ ĐÁNH GIÁ, DỰ ÁN...... 224

3.4.1.  Mức độ chi tiết của các đánh giá tác động môi trường............... 224

3.4.2.  Độ tin cậy của đánh giá tác động môi trường............................... 225

CHƯƠNG 4......................................................................................... 228

PHƯƠNG ÁN CẢI TẠO, PHỤC HỒI MÔI TRƯỜNG,............................... 228

PHƯƠNG ÁN BỒI HOÀN ĐA DẠNG SINH HỌC................................... 228

CHƯƠNG 5. CHƯƠNG TRÌNH QUẢN LÝ VÀ GIÁM SÁT MÔI TRƯỜNG . 229

5.1.   Chương trình quản lý môi trường của chủ dự án...................................... 229

5.1.1.    Mục tiêu....................................................................................... 229

5.1.2.   Tóm lược nội dung chương trình quản lý môi trường.......................... 229

5.2.   Chương trình quan trắc, giám sát môi trường của chủ dự án.............. 236

5.2.1.   Mục tiêu của chương trình giám sát môi trường.......................... 236

5.2.2.    Cơ sở giám sát chất lượng môi trường........................................ 236

5.2.3.    Trách nhiệm cụ thể của CDA....................................................... 236

5.2.4.    Kế hoạch giám sát môi trường................................................. 237

KẾT LUẬN, KIẾN NGHỊ VÀ CAM KẾT.................................................. 240

1.   KẾT LUẬN.................................................................................... 240

2.   KIẾN NGHỊ............................................................................... 241

3.   CAM KẾT................................................................................ 241

CÁC TÀI LIỆU, DỮ LIỆU THAM KHẢO.................................... 243

CHƯƠNG 1. THÔNG TIN VỀ DỰ ÁN

1.1. THÔNG TIN VỀ DỰ ÁN

1.1.1.Tên dự án:

NHÀ MÁY ĐIỆN RÁC...

1.1.2. Thông tin Chủ dự án

-  Chủ dự án: Công ty Cổ phần Galax

-   Địa chỉ liên hệ: Xóm 4, xã Nghi Yên, huyện Nghi Lộc, tỉnh Nghệ An (nay là Xóm 4, xã Hải Lộc, tỉnh Nghệ An)

-  Số điện thoại: 0966338341

-  Người đại diện: Ông Nguyễn Mạnh Hùng            Chức vụ: Tổng Giám đốc

-  Tiến độ thực hiện dự án:

+ Giai đoạn I: Từ quý I/2024 đến quý IV/2028;

+ Giai đoạn II: Từ quý IV/2027 đến quý IV/2030.

1.1.3. Vị trí địa lý của địa điểm thực hiện dự án

Khu vực quy hoạch Nhà máy diện rác Nghệ An có diện tích 71.914,4 m2, thuộc Khu liên hợp xử lý CTR Nghi Yên, huyện Nghi Lộc, tỉnh Nghệ An (nay là xã Hải Lộc, tỉnh Nghệ An), ranh giới khu vực như sau:

-  Phía Đông: kết nối với Quốc lộ 1A bằng đường bê tông rộng 7m;

-  Phía Bắc: Giáp rừng phòng hộ;

-  Phía Nam và phía Tây: giáp với khu đất Khu liên hợp xử lý CTR Nghi Yên.

Hình 1.1. Vị trí dự án Nhà máy điện rác Nghệ An trên Google Earth

Bảng 1.1: Tọa độ các điểm giới hạn của khu đất thực hiện dự án

TỌA ĐỘ RANH GIỚI DỰ ÁN

(Hệ toạ độ VN2000, múi chiếu 3o, KTT 105o)

Mốc

X

Y

Mốc

X

Y

1

206959872

58736269

6

206953546

58773422

2

206947448

58751419

7

206958144

58755310

3

206931297

58789859

8

206953149

5874575

4

206949244

58794317

9

206963168

58744862

5

206953786

58775241

10

206959872

58736269

1.1.4. Hiện trạng quản lý, sử dụng đất của dự án

Nhu cầu sử dụng đất của Nhà máy điện rác Nghệ An là 71.974,4 m2, là khu đất của Khu liên hợp tái chế và xử lý CTR ECOVI tại xã Nghi Liên, huyện Nghi Lộc, tỉnh Nghệ An cũ (nay là xã Hải Lộc, tỉnh Nghệ An). Toàn bộ diện tích đất triển khai dự án đã được Sở Tài nguyên Môi trường tỉnh Nghệ An cấp giấy chứng nhận quyền sử dụng đất số BI 716607 ngày 10/4/2012.

Khu liên hợp tái chế và xử lý CTR ECOVI đã đầu tư xây dựng các hạng mục công trình theo báo cáo ĐTM đã được phê duyệt tại Quyết định số QĐ 263/QĐ- BTNMT ngày 4/02/2015, đã đi vào vận hành từ năm 2017 và được cấp giấy xác nhận hoàn thành các công trình BVMT theo Giấy xác nhận số 18/GXN-BTNMT ngày 10/2/2020 của Bộ Tài nguyên và Môi trường.

Khu liên hợp xử lý và tái chế CTR đã dừng hoạt động từ năm 2021 và đã tháo dỡ hầu hết các hạng mục công trình xây dựng trên đất. Hiện tại, trên khu đất hiện trạng có khu nhà văn phòng của nhà máy cũ. Các khu vực còn lại là đất trống, mặt bằng tương đối bằng phẳng thuận lợi cho việc san gạt mặt bằng thi công dự án. Hệ thống đường giao thông của địa phương đảm bảo thuận lợi cho vận chuyển các trang thiết bị và vật liệu xây dựng dự án. Tuyến đường vào dự án là đường dân sinh kết nối với Quốc lộ 1A có chiều dài khoảng 1km được làm bằng bê tông bề rộng nền là 7,0m.

Theo bản đồ Quy hoạch sử dụng đất đến năm 2030 của tỉnh Nghệ An, dự án Nhà máy điện rác Nghệ An đã được quy hoạch sử dụng đất bãi thải, xử lý chất thải (DRA), cụ thể như hình sau:

Hình 1.2. Quy hoạch sử dụng đất tại vị trí dự án Nhà máy điện rác Nghệ An

Bảng 1.2. Bảng tổng các hạng mục công trình của dự án

hiệu

Tên hạng mục

Diện tích XD

(m²)

Tầng cao

(tầng)

Ghi chú

1

Xưởng chế tạo dầu DO

888,0

1

XD mới

2

Xưởng tái chế nhựa

750,0

1

XD mới

3

Xưởng xử lý chất thải y tế

1.260,0

1

XD mới

4

Nhà máy chính

14.046,29

1-7

XD mới

5

Ống khói

89,89

1

XD mới

6

Nhà nghỉ ca công nhân, nhà ăn

và nhà bếp

747,40

4

XD mới

7

Nhà bảo vệ

25,0

1

XD mới

8

Phòng kỹ thuật trạm cân

27,30

1

XD mới

9

Bể chứa nước mưa (bể ngầm)

65,19

-

XD mới

10

Phòng bơm tổng hợp

705,84

1

XD mới

11

Tháp giải nhiệt

834,69

-

XD mới

12

Bể nước PCCC

506,88

-

XD mới

13

Kho dầu

290,38

1

XD mới

14

Nhà xử lý nước thải công nghiệp

458,25

1

XD mới

15

Kho lưu trữ tro bay

583,59

1

XD mới

16

Cầu vận chuyển rác

1.190,0

-

XD mới

17

Khu vực xử lý nước rỉ rác

2.745,0

-

XD mới

17’

Khu vực bể chứa khí và hệ thống

khử mùi

-

-

XD mới

18

Nhà xử lý tro xỉ (2 nhà)

2.304,00x2

= 4.608,00

1

XD mới

hiệu

Tên hạng mục

Diện tích XD

(m²)

Tầng cao

(tầng)

Ghi chú

19

Trạm cân

195,14

-

XD mới

20

Nhà điều hành

371,29

2

Đã xây dựng

21

Cây xanh

-

-

 

22

Đường giao thông nội bộ

-

-

 

23

Trạm biến áp

-

-

 

24

Cổng chính

-

-

 

25

Cổng phụ

-

-

 

Tổng diện tích xây dựng công trình

26.236,37

01-07

 

Diện tích khu đất

71.974,40

01-07

 

(Nguồn: Công ty Cổ phần Galax cung cấp)

Phần diện tích dự kiến thi công trạm bơm và tuyến đường ống cấp nước của dự án đang được chủ dự án thực hiện các thủ tục đất đai theo quy định.

1.1.5. Khoảng cách từ dự án tới khu dân cư và khu vực có yếu tố nhạy cảm về môi trường

-   Khu dân cư tập trung: Dự án được xây dựng trên khu đất được quy hoạch là Khu liên hợp xử lý CTR của tỉnh nên có vị trí cách xa các khu dân cư tập trung.

-   Hệ thống vườn quốc gia, khu bảo tồn thiên nhiên, khu dự trữ sinh quyển và các khu dự trữ thiên nhiên khác: Trong vòng bán kính 1 km xung quanh khu vực dự án không có các khu vực vườn quốc gia, khu bảo tồn thiên nhiên, khu dự trữ sinh quyển và các khu dự trữ thiên nhiên khác.

-  Hệ thống thoát nước: Trong khu vực nghiên cứu có mương thoát nước chạy dọc theo phía Nam dự án có hướng thoát ra tuyến kênh nhà Lê ở phía Tây dự án.

-    Hệ thống giao thông: giao thông dự án kết nối với hệ thống giao thông của KKT đã được hoàn thiện, thuận tiện cho quá trình đi lại của cán bộ công nhân và vận chuyển nguyên vật liệu đến nhà máy cũng như tiêu thụ sản phẩm.

-  Hiện trạng cấp nước: Khu vực đã hệ thống cấp nước sạch tập trung.

-  Cấp điện: Hệ thống đường dây điện trung thế 22kV cách khu vực dự án khoảng 100m, thuận tiện cho đấu nối vào lưới trung thế để cấp điện thi công, tự dùng cho dự án Nhà máy điện rác Nghệ An.

-  Hiện trạng thông tin liên lạc:

+ Mạng lưới bưu chính - viễn thông trong khu vực đã được đầu tư hiện đại hoá, thông tin liên lạc thông suốt, đảm bảo yêu cầu. Hệ thống mạng cáp viễn thông chủ yếu dùng cột thông tin hoặc cột hạ thế của điện lực, đã đáp ứng kịp thời nhu cầu lắp đặt thuê bao mới cho người dân trên khu vực. Tuy nhiên hệ thống chủ yếu là cáp treo, ảnh hưởng lớn đến mỹ quan đô thị.

-  Các đối tượng kinh tế - xã hội:

+ Tiếp giáp khu vực dự án không có nhà dân, trong vòng bán kính 0,5 km xung quanh khu vực dự án không có nhà dân.

+ Xung quanh dự án không có công trình di tích văn hóa - lịch sử.

1.1.6. Mục tiêu, loại hình, quy mô, công suất và công nghệ sản xuất Dự án

1.1.6.1.Mục tiêu dự án

Xây dựng nhà máy xử lý CTR bằng công nghệ đốt phát điện tại Khu liên hợp xử lý CTR Nghi Yên, xã Hải Lộc, tỉnh Nghệ An

1.1.6.2. Loại hình dự án

Dự án Nhà máy điện rác Nghệ An được đề xuất xây dựng mới trên cơ sở điều chỉnh Dự án Khu liên hợp tái chế và xử lý CTR Ecovi tại huyện Nghi Lộc, Nghệ An (nay là xã Hải Lộc, tỉnh Nghệ An).

1.1.6.3. Quy mô, công suất của dự án

Quy mô dự án: Tổng công suất xử lý CTRSH là 1.500 tấn/ngày.đêm, công suất phát điện lên lưới điện quốc gia là 30MW, chia làm 02 giai đoạn đầu tư, cụ thể như sau:

-  Giai đoạn 1:

+ Xây dựng Nhà máy xử lý rác thải sinh hoạt phát điện công suất xử lý rác (không phân loại) 1.000 tấn/ngày, công suất phát điện 20 MW, có cấu hình 01 Module như sau: 01 lò đốt + 01 lò hơi + 01 tuabin/máy phát công suất 20MW.

+ Xử lý chất thải y tế: 3 tấn/ngày đêm.

-  Giai đoạn 2:

+ Xây dựng Nhà máy xử lý rác thải sinh hoạt phát điện công suất xử lý rác (không phân loại) 500 tấn/ngày, công suất phát điện 10 MW, có cấu hình 01 Module như sau: 01 lò đốt + 01 lò hơi + 01 tuabin/máy phát công suất 10MW.

+ Tái chế 6 tấn nhựa PE/ngày đêm.

+ Tái chế 3 tấn dầu DO/ngày đêm.

1.1.6.4.Công nghệ sản xuất của dự án

-  Quy trình công nghệ lò đốt CTRSH phát điện

+ Quy trình đốt: CTRSH → trạm cân → hầm chứa rác → nạp liệu → buồng đốt rác (gồm vùng đốt sơ cấp và vùng đốt thứ cấp, trong đó ghi lò đốt theo công nghệ Martin của Đức (ghi lò đốt dịch chuyển nghịch)) → khử NOx bằng Ure (công nghệ khử không xúc tác SNCR) → lò hơi → phun bột vôi tôi (bột Ca(OH)2 để xử lý khí axit (công nghệ khô) → phun than hoạt tính để xử lý dioxin/furan → thiết bị lọc bụi túi vải → quạt hút → ống khói cao 80 m.

+ Quy trình thu hồi nhiệt để phát điện: Nhiệt sinh ra từ quá trình đốt rác → lò hơi → bao hơi → bộ quá nhiệt → tua bin hơi gắn kết với máy phát điện.

-  Công nghệ xử lý chất thải y tế: CTR y tế (không bao gồm chất thải giải phẫu) → Phân loại → Nồi hấp tiệt trùng → Máy nghiền cắt chất thải → Hầm chứa CTRSH → Lò đốt CTR sinh hoạt.

-   Quy trình công nghệ tái chế dầu: Dầu (nhớt) thải → Thiết bị lọc thô → Bồn chứa dầu thải → Lò phản ứng cracking → Khuấy trộn → Lọc → Dầu nhiên liệu thành phẩm.

-   Quy trình công nghệ tái chế nhựa: Nhựa phế liệu → Phân loại → Nhựa có thể tái sinh → Băm, cắt, nghiền → Phối trộn → Ép nhiệt → Ép nguội → Cắt tỉa cạnh thừa → Đóng gói sản phẩm, lưu kho (Nhựa không thể tái sinh → Ép viên nhiên liệu → Lò đốt CTRSH).

1.1.7. Phạm vi dự án

1.1.7.1. Các hạng mục công trình và hoạt động của dự án đầu tư

a. Các hạng mục công trình

*Các hạng mục công trình chính:

Giai đoạn 1:

- Nhà máy chính diện tích 14.046,29 m2 bao gồm:

+ Sảnh tiếp nhận rác kích thước 43,7m x 20,6m;

+ 01 hầm chứa rác (kích thước 56m x 28m x 22m, thể tích 34.496 m3);

+ 01 Lò đốt (công suất 1.000 tấn rác/ngày đêm);

+ 01 ống khói lò đốt chất thải chiều cao 80m.

+ 01 lò hơi (năng suất hơi 84,7 t/h);

+ 01 Tuabine/Máy phát công suất 20MW; 01 MBA 25MVA.

-   Xưởng xử lý chất thải y tế diện tích 1.260 m2 bao gồm 01 hệ thống xử lý chất thải y tế công suất 3 tấn/ngày đêm (trước khi đưa vê lò đốt tại nhà máy chính).

Giai đoạn 2:

-  Lắp đặt bổ sung tại nhà máy chính:

+ 01 Lò đốt (công suất 500 tấn rác/ngày đêm);

+ 01 lò hơi (năng suất hơi 46,1 t/h);

+ 01 Tuabine/Máy phát công suất 10MW; 01 MBA 12 MVA.

-  Xưởng số 1: 01 hệ thống tái chế 6 tấn nhựa PE/ngày đêm.

-  Xưởng số 2: 01 hệ thống tái chế 3 tấn dầu DO/ngày đêm.

-  Các hạng mục công trình khác giữ nguyên như giai đoạn 1.

*  Các hạng mục công trình phụ trợ

Nhà nghỉ ca công nhân, nhà ăn và nhà bếp; nhà bảo vệ; phòng kỹ thuật trạm cân; bể chứa nước mưa; phòng bơm tổng hợp; tháp giải nhiệt; bể nước PCCC; kho dầu; cầu vận chuyển rác; trạm cân; nhà điều hành, cổng chính, cổng phụ; hệ thống hạ tầng kỹ thuật của dự án,...

* Các công trình bảo vệ môi trường:

Giai đoạn 1:

+ 01 hệ thống thu gom và xử lý khí thải của lò đốt chất thải đi kèm đồng bộ với lò đốt chất thải công suất 1.000 tấn/ngày.đêm;

+ 01 hệ thống thu gom và xử lý nước rỉ rác công suất 500 m3/ngày.đêm;

+ 01 hệ thống thu gom và nhà máy xử lý nước thải công nghiệp công suất 600 m3/ngày.đêm;

+ Hệ thống thiết bị khử mùi phát sinh từ bể chứa rác.

+ Hệ thống thiết bị xử lý mùi tại hệ thống xử lý nước rỉ rác.

+ Kho lưu trữ tro bay diện tích 583,59 m2.

+ Bãi thải tro xỉ diện tích 9.748,05 m2.

+ Nhà máy xử lý tro xỉ diện tích 4.608 m2 (02 nhà)

+ Cây xanh diện tích 21.032,96 m2;

-  Giai đoạn 2

-  Xây dựng, lắp đặt bổ sung:

+ 01 hệ thống xử lý khí thải của lò đốt chất thải đi kèm đồng bộ với lò đốt chất thải công suất 500 tấn/ngày.đêm;

+ 01 hệ thống xử lý khí thải từ hệ thống tái chế dầu;

+ 01 hệ thống xử lý khí thải từ hệ thống tái chế nhựa.

1.1.7.2.Các hạng mục công trình và hoạt động của dự án đầu tư không thuộc phạm vi đánh giá tác động môi trường

-   Hoạt động thu gom, vận chuyển rác đến Nhà máy (hoạt động này thuộc trách nhiệm của Đơn vị cung cấp chất thải sinh hoạt đến nhà máy; thực hiện theo hợp đồng với Chủ dự án).

-  Tuyến đường dây truyền tải điện từ nhà máy đấu nối với lưới điện.

1.1.8. Các yếu tố nhạy cảm về môi trường

Dự án không có yếu tố nhạy cảm về môi trường theo quy định tại Điều 25 Nghị định số 08/2022/NĐ-CP ngày 10 tháng 01 năm 2022 của Chính phủ quy định chi tiết một số điều của Luật Bảo vệ môi trường, sửa đổi bổ sung tại Nghị định số 05/2025/NĐ-CP ngày 06 tháng 01 năm 2025 của Chính phủ sửa đổi, bổ sung một số điều của Nghị định số 08/2022/NĐ-CP ngày 10 tháng 01 năm 2022 của Chính phủ quy định chi tiết một số điều của Luật bảo vệ môi trường.

1.2. CÁC HẠNG MỤC CÔNG TRÌNH VÀ HOẠT ĐỘNG CỦA DỰ ÁN

1.2.1. Các hạng mục công trình chính của Dự án

Quy mô xây dựng các hạng mục công trình chính của Dự án gồm:

1.2.1.1.Nhà máy chính

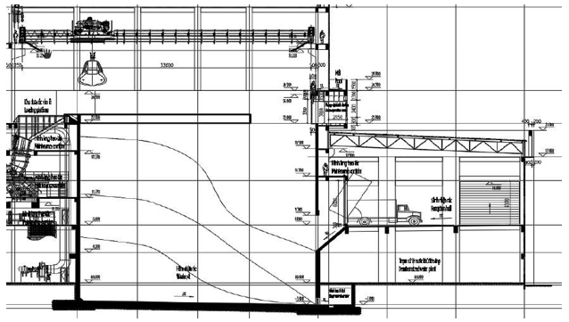
Đây là khu vực bố trí các hạng mục công trình chính của nhà máy như bể chứa rác và hệ thống cầu vượt cho xe chở rác vào đổ rác xuống bể, các lò đốt rác và các hệ thống thiết bị để xử lý khí thải như lọc bụi túi, hệ thống tháp hấp thụ, ống khói… Đi kèm với lò đốt sẽ là các lò hơi tận dụng nhiệt để sinh hơi phục vụ cho mục đích phát điện. Khu vực này cũng sẽ bố trí nhà tua bin máy phát để phát điện.

Nhà máy chính sẽ được bố trí tại trung tâm của khu đất để thuận tiện cho việc kết nối với các hạng mục phụ trợ khác, rút ngắn khoảng cách và thời gian vận chuyển các nguyên nhiên liệu trong quá trình vận hành và giảm chi phí đầu tư xây dựng. Tất cả các hạng mục trong khu vực nhà máy chính sẽ được thiết kế thành một khối thống nhất có bao che bên ngoài.

Nhà máy sử dụng công nghệ đốt không phân loại do vậy toàn bộ lượng rác sẽ được đưa thẳng vào nhà máy bằng xe chở rác chuyên dụng. Theo đó, một cầu vượt xe chở rác sẽ được xây dựng từ cổng dẫn thẳng lên hầm chứa rác. Cầu sẽ được thiết kế để đảm bảo độ dốc nhỏ hơn 80 cho xe chở rác lên xuống dễ dàng.

1.2.1.2. Hệ thống tiếp nhận rác

* Hệ thống cân rác

- Thành phần hệ thống cân: Hệ thống cân rác được điều khiển bằng máy tính và được chia thành hai phần: hệ thống phần cứng và hệ thống phần mềm. Thiết bị phần cứng hệ thống bao gồm: thiết bị phần cứng (máy chủ, máy trạm, phụ kiện mạng, nguồn điện UPS, v.v.), thẻ IC cảm ứng và thiết bị đọc và in, cổng ra vào mở tự động, đèn báo điện tử LED, đèn giao thông, cân xe tải điện tử ( bàn cân), v.v. Hệ thống phần mềm bao gồm hệ điều hành máy chủ và hệ thống quản lý cơ sở dữ liệu.

-  Nhà máy thiết kế sẽ đặt 2 cân điện tử với trọng lượng định mức 80 tấn/cân, đảm bảo cân cho 02 giai đoạn. Một thiết bị cân được sử dụng để cân xe vào và 1 thiết bị được sử dụng để cân xe ra. Tất cả các cân xe tải được cài đặt ở lối vào của cổng và kết nối với phòng điều khiển. Tín hiệu đầu ra của trọng lượng sẽ được kết nối với phòng điều khiển trung tâm và ghi lại thời gian, số xe, tổng trọng lượng và trọng lượng tịnh, v.v.

*   Đường dẫn xe lên bể đổ rác Đường dẫn xe lên bể đổ rác là 1 đường ống kín, kích thước BxL = 8mx12m, được thiết kế với độ dốc (nghiêng 6%) các xe vận chuyển rác sẽ đi qua đường dẫn này để vào sàn đổ rác.

*  Sàn đỗ xe đổ rác vào bể

Sàn đỗ xe có độ cao +8m so với cốt +00. Mặt sàn được làm nhẵn, có độ dốc nghiêng nhất định để thu nước rửa sàn vào bể thu gom chung của nhà máy.

Thông số kỹ thuật:

-  Diện tích khoảng : 1820m2 (rộng 28m, dài 65m)

-  Kết cấu sàn: bê tông cốt thép

-  Độ dốc nghiêng: 3%

Cửa tiếp nhận rác: Số lượng: 02; Kích thước: 3,5 (rộng) x 6,1m (cao).

*   Bể tiếp nhận rác: Bể tiếp nhận rác được thiết kế để lưu trữ rác thải đồng thời cũng là nơi ủ rác để nâng cao nhiệt trị của rác. Bể cũng được thiết kế để có thể được sử dụng cho việc trộn, loại bỏ nước, do vậy chất lượng của chất rác có thể được điều chỉnh. Cấu trúc các bể là bê tông cốt thép có độ chống thấm và chống ăn mòn. Để đảm bảo thời gian lưu trữ và tiết kiệm diện tích, bể được thiết kế nửa nổi nửa chìm. Bể sẽ được thiết kế có dung tích đủ để chứa rác để cung cấp cho nhà máy trong khoảng 7 ngày. Thông số bể tiếp nhận rác của nhà máy được thể hiện trong bảng sau:

Bảng 1.3. Thông số bể tiếp nhận rác

Thông số

Đơn vị

Giá trị

Giai đoạn 1

Giá trị

Giai đoạn 2

Công suất xử lý rác của nhà

máy

Tấn/ngà

y

1000

500

Khối lượng riêng của CTR

Tấn/m3

0,5

0,5

Thời gian lưu chứa

Ngày

7

7

Hệ số điền đầy của bể chứa

 

0,7

0,7

Thể tích cần thiết để lưu chứa

rác

m3

16.510 m3

8.255,5 m3

Chọn kích thước bể (dài x rộng

x cao

 

m

(Dài 56m) × Chiều rộng 28m × Độ sâu trung bình là 14m và mật độ xếp rác được

coi là 0,5t/m3

Hình 1.3. Hình chiếu mặt cắt bể tiếp nhận rác

*Cầu trục gắp và đảo trộn rác trong bể chứa

Cầu trục được sử dụng cho việc gắp và đảo trộn rác trong bể, được bố trí phía trên bể chứa rác để đảo trộn, dịch chuyển rác trong bể và gắp rác vào phễu lò đốt. Cầu trục hoạt động theo chế độ tự động và bán tự động để phục vụ cho việc gắp và đảo trộn rác.

Hệ thống cầu trục được tính toán có thiết bị dự phòng và vị trí bảo dưỡng chăm sóc để bảo đảm thiết bị hoạt động thường xuyên an toàn không gây gián đoạn đến sản xuất.

Thông số kỹ thuật:

-  Số lượng cầu trục: 02

-  Tải trọng gắp rác: 20 tấn.

*Hệ thống thu gom nước rỉ rác trong bể lưu chứa

Hình 1.4. Hệ thống thu gom nước rỉ rác

Bể chứa rác được thiết kế có hệ thống thu gom nước rỉ rác, có độ dốc nhất định theo hướng chiều rộng của bể. Nước rỉ rác phát sinh trong quá trình lưu chứa trong bể, được thu gom về phía rãnh qua cửa lưới thép không gỉ vào chảy vào rãnh thu gom và bể chứa với dung tích 625m3.

Nước rỉ rác trong bể chứa được bơm bằng máy bơm với công suất 35m3/h đến trạm xử lý của nhà máy để xử lý tập trung.

1.2.1.3.Hệ thống lò đốt và lò hơi

a.Lò đốt CTR

Phần lò của nhà máy bao gồm bản thể lò đốt rác, phần lò hơi tận dụng nhiệt khói thải và các thiết bị hệ thống phụ trợ cần thiết trong khu vực lò hơi.

Thông số cơ bản của lò đốt như sau:

Bảng 1.4. Thông số lò đốt

Thông số

Đơn vị

Giá trị

Giai đoạn 1

Giai đoạn 2

Công suất xử lý rác

t/ngày

1000

500

Công suất rác vào lò đốt

t/h

37,5

20,83

Công suất nhiệt định mức của lò đốt

MWnhiệt

73.17

40,65

Nhiệt trị thấp làm việc của rác thải

kJ/kg

7025

7025

Thời gian hoạt động trong năm

h

8000

8000

Thời gian rác duy trì cháy trên ghi

h

1,5-2,5

1,5-2,5

Nồng độ CO ra khỏi buồng đốt

mg/Nm3

50

50

Nồng độ NOx ra khỏi buồng đốt

mg/Nm3

300-400

300-400

Nhiệt độ nước cấp của lò hơi

oC

130

130

Áp suất hơi

MPa

6,4

6,4

Nhiệt độ hơi (Đầu ra của lò hơi)

oC

450

450

Công suất hơi định mức

t/h

84,7

46,1

Nhiệt độ gió sơ cấp

oC

220

220

Nhiệt độ gió thứ cấp

oC

27

27

Nhiệt độ tâm buồng đốt

oC

1050

1050

Thời gian khói thải duy trì trong buồng đốt

>950oC

s

>2

>2

Nhiệt độ khí thải thoát ra khỏi lò hơi

oC

170-190

170-190

Áp suất thiết kế của khí thải

Pa

+/-35

+/-35

Nhiệt độ khí thải ở đầu vào thiết bị quá nhiệt

oC

<650

<650

Hiệu suất lò đốt và lò hơi

%

>90

>81

Hàm lượng chất cháy không cháy hết

%

<3

<3

Việc lập dự án đầu tư và hồ sơ báo cáo đánh giá tác động môi trường (ĐTM) đối với dự án nhà máy điện rác – xử lý chất thải rắn (CTR) bằng công nghệ đốt phát điện tại khu liên hợp xử lý CTR – là một nội dung có ý nghĩa đặc biệt quan trọng trong bối cảnh áp lực xử lý rác thải đô thị ngày càng gia tăng. Dự án không chỉ góp phần giải quyết bài toán môi trường mà còn tạo ra giá trị kinh tế thông qua việc thu hồi năng lượng từ chất thải, phù hợp với định hướng phát triển kinh tế tuần hoàn và bền vững.

Dự án nhà máy điện rác được triển khai với mục tiêu xử lý triệt để lượng chất thải rắn sinh hoạt phát sinh trên địa bàn, giảm thiểu khối lượng rác chôn lấp, hạn chế ô nhiễm môi trường và tận dụng nguồn năng lượng từ rác để phát điện. Việc lựa chọn công nghệ đốt phát điện hiện đại giúp nâng cao hiệu quả xử lý, giảm phát thải thứ cấp và tối ưu hóa việc sử dụng tài nguyên. Đây là xu hướng đang được áp dụng rộng rãi tại nhiều quốc gia nhằm giải quyết đồng thời hai vấn đề: môi trường và năng lượng.

Trong nội dung lập dự án đầu tư, cần trình bày rõ các thông tin cơ bản như tên dự án, chủ đầu tư, địa điểm thực hiện, diện tích sử dụng đất, quy mô công suất xử lý rác và công suất phát điện dự kiến. Nhà máy điện rác thường được bố trí trong khu liên hợp xử lý CTR, bao gồm các hạng mục chính như khu tiếp nhận và phân loại rác, khu lò đốt, khu phát điện, hệ thống xử lý khí thải, khu xử lý tro xỉ, khu phụ trợ và khu hành chính. Việc bố trí mặt bằng cần đảm bảo khoảng cách an toàn với khu dân cư, thuận tiện cho vận chuyển rác và đáp ứng các yêu cầu về an toàn môi trường.

Quy trình công nghệ xử lý CTR bằng đốt phát điện là nội dung cốt lõi của dự án. Rác thải sau khi được tiếp nhận sẽ được phân loại sơ bộ để loại bỏ các vật liệu không phù hợp. Sau đó, rác được đưa vào lò đốt ở nhiệt độ cao (thường trên 850°C) để tiêu hủy hoàn toàn. Nhiệt lượng sinh ra từ quá trình đốt được sử dụng để tạo hơi nước, vận hành tua-bin phát điện. Tro đáy và tro bay sau quá trình đốt được thu gom và xử lý theo quy định. Toàn bộ quy trình được vận hành theo hệ thống khép kín, có kiểm soát nhằm đảm bảo hiệu quả xử lý và giảm thiểu phát thải.

Trong báo cáo ĐTM, việc đánh giá các tác động môi trường là nội dung quan trọng hàng đầu. Khí thải từ lò đốt là nguồn tác động chính, có thể chứa bụi, SO₂, NOx, CO, dioxin/furan và các kim loại nặng. Nếu không được xử lý triệt để, các chất này có thể gây ảnh hưởng nghiêm trọng đến môi trường và sức khỏe con người. Do đó, dự án cần đầu tư hệ thống xử lý khí thải hiện đại, bao gồm các công đoạn như làm nguội khí, lọc bụi, hấp phụ than hoạt tính và xử lý hóa học để đảm bảo khí thải đạt quy chuẩn trước khi xả ra môi trường.

Nước thải trong nhà máy điện rác phát sinh từ nhiều nguồn như nước rỉ rác, nước làm mát, nước vệ sinh thiết bị và nước thải sinh hoạt. Nước rỉ rác là loại nước thải có tải lượng ô nhiễm cao, cần được xử lý bằng công nghệ phù hợp như sinh học kết hợp hóa lý trước khi xả thải. Hệ thống thu gom và xử lý nước thải phải được thiết kế đồng bộ, đảm bảo không để rò rỉ ra môi trường xung quanh.

Chất thải rắn trong dự án bao gồm tro đáy, tro bay và bùn thải từ hệ thống xử lý nước. Tro đáy có thể được tận dụng làm vật liệu xây dựng nếu đáp ứng tiêu chuẩn, trong khi tro bay thường được xếp vào nhóm chất thải nguy hại và cần được xử lý, chôn lấp an toàn theo quy định. Việc quản lý chặt chẽ các loại chất thải này là yêu cầu bắt buộc nhằm tránh phát sinh ô nhiễm thứ cấp.

Ngoài ra, dự án còn có thể phát sinh mùi, tiếng ồn và rung động. Mùi phát sinh từ khu tiếp nhận và lưu trữ rác cần được kiểm soát bằng hệ thống hút và xử lý khí, đảm bảo không ảnh hưởng đến khu vực xung quanh. Tiếng ồn từ máy móc và thiết bị cần được giảm thiểu thông qua việc sử dụng thiết bị hiện đại và bố trí hợp lý.

Các biện pháp giảm thiểu tác động môi trường cần được đề xuất một cách toàn diện trong báo cáo ĐTM. Điều này bao gồm việc áp dụng công nghệ xử lý tiên tiến, xây dựng hệ thống quản lý môi trường nội bộ, đào tạo nhân viên và thực hiện quan trắc môi trường định kỳ. Chương trình quan trắc cần tập trung vào các thông số quan trọng như khí thải, nước thải, tiếng ồn và chất lượng môi trường xung quanh.

Một nội dung không thể thiếu là kế hoạch phòng ngừa và ứng phó sự cố môi trường. Các sự cố có thể xảy ra bao gồm sự cố lò đốt, rò rỉ nước rỉ rác, cháy nổ hoặc hỏng hóc hệ thống xử lý khí thải. Do đó, cần xây dựng quy trình ứng phó chi tiết, trang bị đầy đủ thiết bị an toàn và tổ chức diễn tập định kỳ để đảm bảo khả năng xử lý kịp thời.

Từ góc độ kinh tế – xã hội, dự án nhà máy điện rác mang lại nhiều lợi ích như giảm áp lực chôn lấp rác, tạo nguồn điện năng bổ sung, tạo việc làm và cải thiện môi trường sống. Tuy nhiên, để đạt được sự đồng thuận của cộng đồng, cần thực hiện công tác truyền thông minh bạch, cung cấp đầy đủ thông tin về công nghệ và các biện pháp bảo vệ môi trường.

Tổng thể, việc lập dự án đầu tư và báo cáo đánh giá tác động môi trường đối với nhà máy điện rác là một quá trình phức tạp, đòi hỏi sự kết hợp giữa công nghệ, quản lý và tuân thủ pháp luật. Một hồ sơ được xây dựng đầy đủ, khoa học và phù hợp với thực tiễn sẽ giúp dự án được phê duyệt thuận lợi, đồng thời tạo nền tảng cho hoạt động xử lý chất thải hiệu quả, an toàn và bền vững trong dài hạn.

GỌI NGAY 0903 649 782
ĐỂ ĐƯỢC TƯ VẤN 

CÔNG TY CỔ PHẦN TƯ VẤN ĐẦU TƯ & THIẾT KẾ XÂY DỰNG MINH PHƯƠNG 

Địa chỉ: 28B Mai Thị Lựu - Khu phố 7, Phường Tân Định, TP.HCM

Hotline:  0903 649 782 - 028 3514 6426

Email:  nguyenthanhmp156@gmail.com , 

Website: www.minhphuongcorp.com

Bình luận (0)

Gửi bình luận của bạn

Captcha